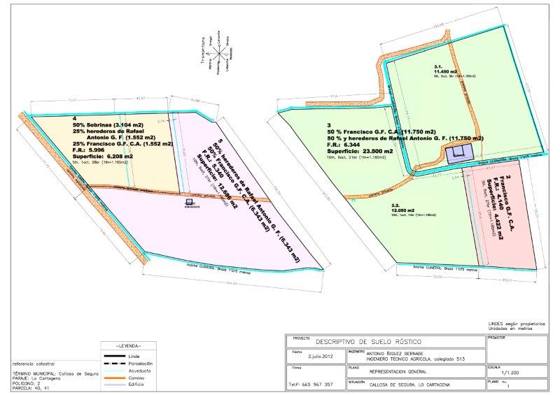
包裹 出售 在 Callosa de Segura, 260.000 € (Ref. Finca Callosa)
产品特点
通用
表面
表面
价格
260.000 €
能源证书
|
CALIFICACIÓN ENERGÉTICA
|
Consumo energía kW h / m2 año |
Emisiones CO2 kg CO2 / m2 año |
|---|---|---|
| A | ||
| B | ||
| C | ||
| D | ||
| E | ||
| F | ||
| G |
位置和环境
Callosa de Segura (Alicante)













































